Brothers’ Hong Kong bachelor pad gets masculine makeover
Monochromatic theme lifted with white accents on furniture and bedlinen

It helps to have someone creative in the family, particularly when you have a home to renovate. As soon as James Hui Ting-hang and his brother, Laurence, bought their apartment in Happy Valley, they called on a cousin Yu-Chang Chen, founder of interiors company hoo, to come and help them out.
“James and Laurence had absolutely no idea what design concept to go for so they were more than happy to leave everything up to me,” Chen says. “All they cared about was their moving-in date.”
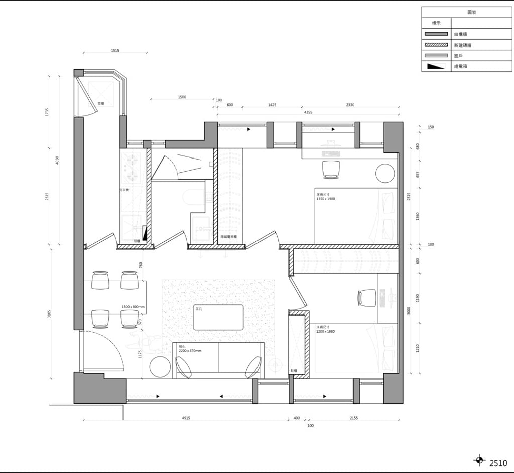
The 750 sq ft flat had three tiny bedrooms, one of which was little more than a storeroom. Chen gutted the property and started again. He condensed the three bedrooms into two, creating a slightly larger space for James, who works for a fitness brand in Hong Kong. The smaller bedroom was earmarked for Laurence, who is studying in London and isn’t often in Hong Kong, and it doubles as a guest room for their mother, who visits regularly from Shanghai.

Chen is a fan of mid-century modern, and felt that the style’s characteristic minimal look and clean lines would be ideal for his cousins’ new home. Everything was kept uniformly similar throughout the apartment, with a black-and-white theme, dark wall panelling and flooring, and a cement-look paint finish.
“You typically go for light colours to maximise the impression of space in a small flat but I opted for a darker palette to give more character and a masculine feel. We even have black light switches,” Chen says. “I was tempted to paint the ceiling cement grey, too, but I thought that would make the apartment feel claustrophobic so instead I went for white.”