A dog-friendly Hong Kong home that fulfils its human inhabitants’ needs, too
- A Mid-Levels flat was reconfigured and refreshed, with the previous ‘tiny, awful’ rooms removed
- This ensured every family member’s requirements were met, including those of Buddy the bichon frise

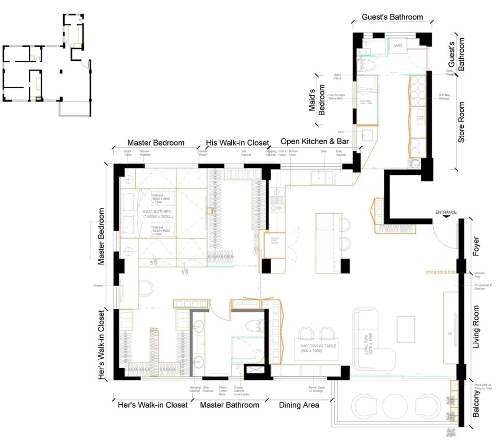
Accommodating Buddy, a bichon frise belonging to clients John and Yasue Killian, in the remodel of their 1,200 sq ft, one-bedroom Mid-Levels flat, was an interesting challenge for Clifton Leung Hin-che, of Clifton Leung Design Workshop.
“I generally like to use features and seating areas at different heights so you can view the home from different vantage points,” says Leung. “But for this project, we made things especially low for the dog, with steps up to the bed and dog flaps in the internal sliding doors.”
The nine-month renovation of the now two-bedroom flat, which was completed in January last year, has also benefited the human portion of the family, giving them increased headroom and a spacious new layout.
“They had been living there for a long time with such a bad layout,” says Leung. “The living room, the tiny dining room, the even tinier study, it was just awful. The master bedroom had only one narrow window but the walk-in wardrobe next to it had a big window with a nice view. And there were all these low false ceilings, which made the place feel dark and cramped.”

Leung’s first step was to remove the false ceilings and strip the property to its bare bones, eliminating corridor space and two “tiny useless rooms”, giving way to an open kitchen and uninterrupted sightlines through the length and breadth of the flat. The second bathroom has also disappeared, the space it occupied now part of a Japanese-style bed platform in the newly expanded and light-filled bedroom.