How a Hong Kong couple’s ‘love nest’ had to be rejigged for a family of four
An unexpected turn of events meant it was back to the drawing board for hoo designers Yu-Chang Chen and Yannes Cheng, who ensured the final product delivered on the couple’s changing expectations

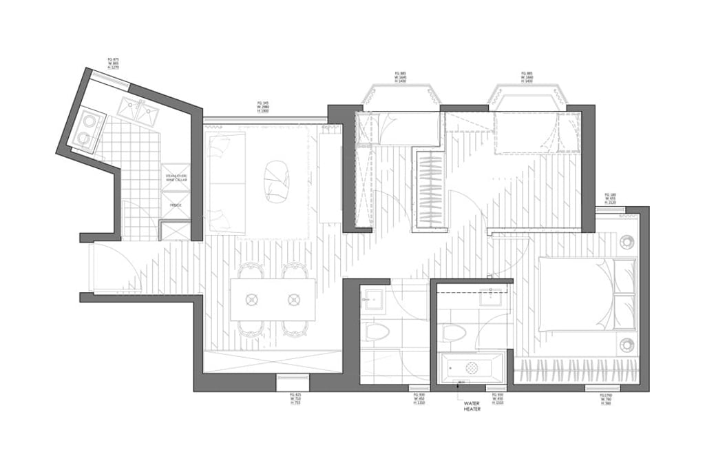
What happens when a family of two suddenly becomes four? For a Jardine’s Lookout couple who were about to begin a home renovation, it was a case of back to the drawing board.
“We had completed the design stage, and were about to start construction [in 2017], when the couple announced that they were expecting twins,” says Yu-Chang Chen, founder of interiors company hoo. “So, we had to go back and start again.”
Plans for the “love nest” that Kit Lau, a doctor, and Charis Tsui Wing-yan, an entrepreneur, had envisaged for themselves now needed to accommodate the impending new arrivals – a boy and a girl – as well as a helper.
The flat started life as a three-bedroom unit in a 1980s high-rise. The owners were attracted to its quiet location and green surroundings. At 886 sq ft, it was a comfortable size for two, and the couple had allowed themselves the luxury of a large bedroom with an en suite, a design enabled by repurposing space previously allocated to the other bedrooms and the main bathroom.

“That was the biggest design change,” says Chen, who worked on the project with hoo designer Yannes Cheng Hoi-yan.