A Hong Kong home gets glossy marble makeover to look like a luxury boutique hotel
The designer, Zeta Chu of Raz Interiors, was given free rein to transform a modern Clear Water Bay flat, with a new floor plan and lashings of white marble

For interior designer Zeta Chu Ka-yan, of Raz Interiors, repeat clients are a treat, often giving her carte blanche with only the most basic brief.
After she renovated his previous flat, in Tai Po, client Alex Toh and his partner asked Chu to makeover their new place, in Clear Water Bay. This time, they wanted it to feel like a luxury boutique hotel in the countryside.
“The flat was brand new but the original tone was heavy and dark, with a lot of wood,” Chu says. “So my client asked me to completely renovate, to make it light, modern and more elegant.”
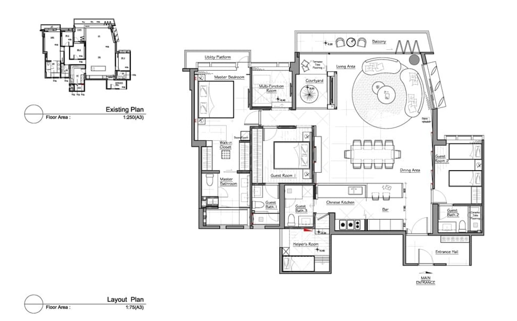
After a seven-month revamp, “only the windows and view are original”, says Chu, who also custom designed most of the flat’s sleek, curvaceous furniture.

The view of forested hills from the open living area has been widened considerably with a major layout tweak: one of the four bedrooms has been moved into the middle of the 1,800 sq ft flat and in its place a glass-walled solarium has been installed.