French designer Peggy Bels applies her industrial-chic aesthetic to create a home for a Hong Kong couple
Bels’ modern, minimal style works perfectly in the 755 sq ft flat, where shades of pink and grey unite to soften her signature concrete finish

On the hunt for decorating ideas for their new apartment in West Kowloon, Christina Sou and her husband, Lokman Tam, were drawn to French interior designer Peggy Bels, whose designs they saw in Post Magazine. The couple’s instinct – that Bels’ modern, minimal style would work well for their 755 sq ft flat – proved correct.
“It was Peggy’s signature concrete finish that sparked our interest – that and her unfussy, chic French style,” says Sou, who works in finance. “We wanted the space to appear larger, contain a lot of storage, and work on a visual as well as a practical level for us as a couple.”
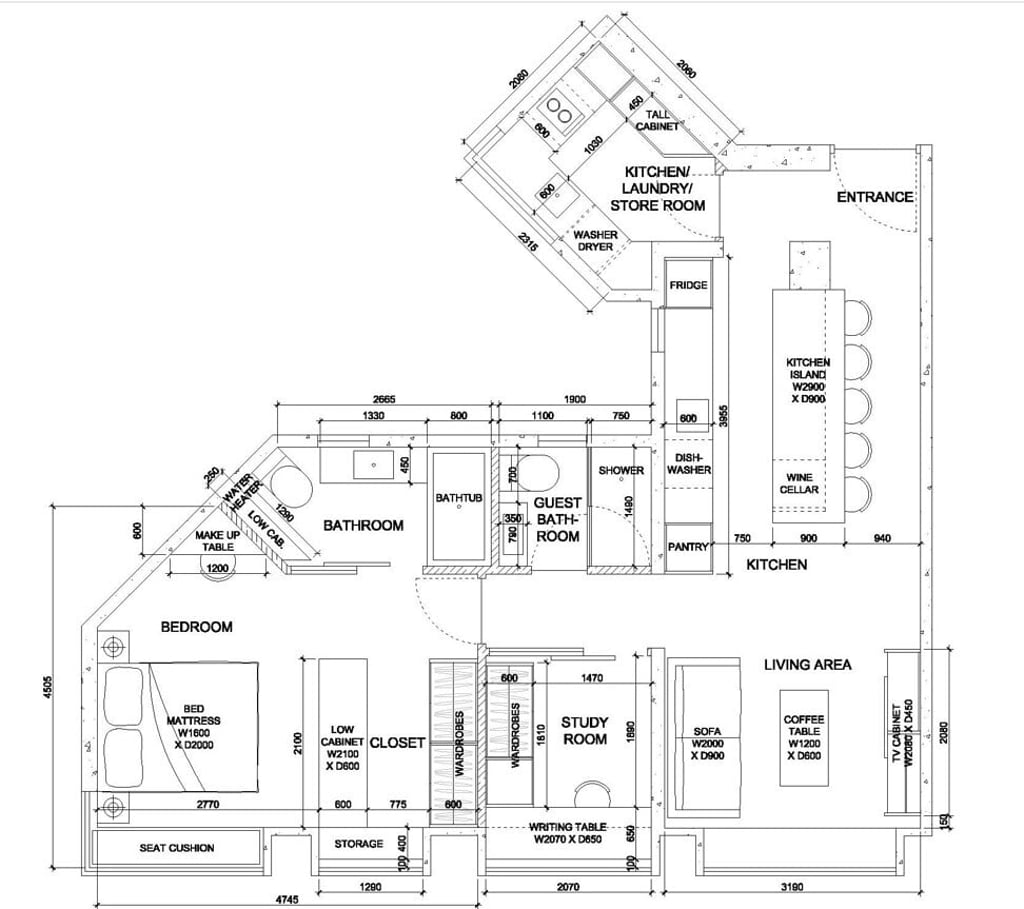
With Bels leading the charge, Sou and Tam gutted the entire flat. Ill-thought-out walls that blocked the entrance and wet kitchen from the rest of the home were the first to go to improve the apartment’s aesthetic and flow. The process was slightly hindered by a structural column but Bels suggested that it become one end of a long, marble-topped island, with a “dry” kitchen behind it and storage cabinets beneath. Reflective marble was used, to add depth to the space.
“We spent so much time planning the layout of the kitchen and dining area,” says Sou. “It was an audacious move to have an island this big in a small Hong Kong apartment and we were initially sceptical about how it would turn out. My husband said it might look like a sushi bar but Peggy convinced us it would work – and it does. We love to entertain so we use it for sit-down dinners as well as casual drinks. It is practical but it also makes a statement.”

Bels’ industrial-chic style is evident throughout but Sou wanted a dash of pink to prevent her home from looking too masculine, so she worked with the designer to incorporate a dusty rose shade in the living room via an upcycled velvet sofa, and pale pink tiles in the wet kitchen.