How a Hong Kong interior designer transformed a flat from derelict and dingy to light-filled and desirable
A fashion designer and first-time homebuyer enlisted Liquid Interiors to renovate her 1,400 sq ft Causeway Bay flat into a sophisticated, elegant and sustainably sourced city bolt-hole

Born in Indonesia, schooled in New York, and now living in Hong Kong, 30-year-old fashion designer Stephanie Wong wanted a flat that reflected her cosmopolitan lifestyle. As a first-time buyer, with a keen interest in sustainability, she turned to the youthful team at Liquid Interiors for a top-to-bottom renovation of the 1,400 sq ft flat she purchased in Causeway Bay in 2019.
“I chose an older building as I wanted somewhere with a view and somewhere that was spacious to allow for an open-plan layout,” says Wong.
The area around Fashion Walk felt like a natural fit but first impressions of the flat would have scared off many a more experienced buyer. “It looked haunted!” says Wong, describing her initial viewing of the space, which had been abandoned for years, had only one working light bulb, paint peeling off the walls and several ugly partitions. “But, my heart was won over by how the apartment overlooked the park.”
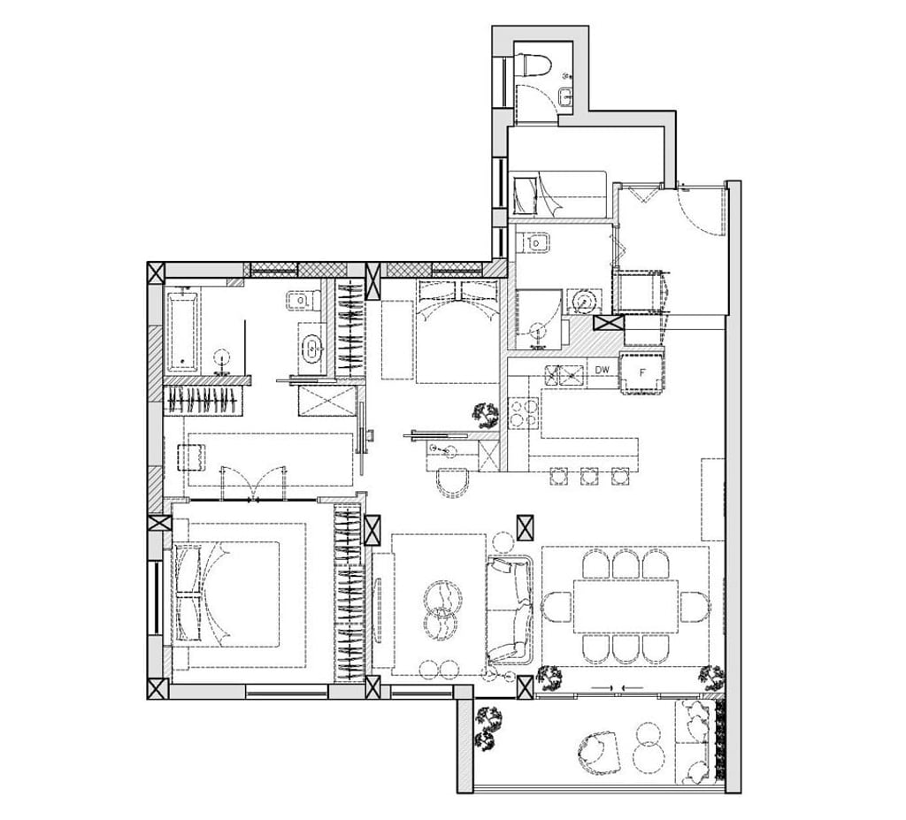
What ensued was seven months of building work, with Liquid Interiors transforming the space from a dingy down-and-out to a light-filled, two-bedroom, two-bathroom lair.

“We felt we could solve all the problems,” says Rowena Gonzales, founder of Liquid Interiors. “When you do a renovation in Hong Kong you pretty much redo the whole thing anyway and we could totally envision the bright contemporary feel that Stephanie was looking for.”
Now, a dark wood front door opens into a small entranceway off-shooting to a guest bathroom. From here, the space unfolds into an open-plan living room, dining area and kitchen. At the other end, huge black-framed windows reveal a balcony and spectacular views across Victoria Park.