Downsizing to 350 sq ft was challenge for Hong Kong interior designer
Several firms refused the job, but Clifton Leung Design Workshop came up with a space-saving, Zen-like concept for the tiny space

When Mei Yee Lim bought a flat in Cullinan West, a new development near Sham Shui Po, she knew she would need the help of a professional designer. “I’d been living in two-bedroom apartments for the past 10 years and taking up the space for myself,” she says. “Downsizing to a 350 sq ft, one-bedroom flat was a challenge.”
Several designers turned her away because of the flat’s size, but Clifton Leung Design Workshop was up for the challenge.
“Hong Kong apartments seem to be getting smaller and smaller,” says Clifton Leung Hin-che. “I think this is the smallest I’ve ever done.”
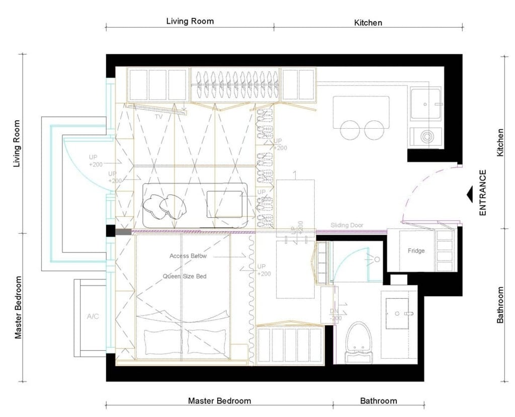
The flat originally comprised a living room/kitchen and a bedroom, with a corridor leading to the bathroom. The space felt cramped, so Leung began by removing the wall between the living room and bedroom, creating an open space and ushering in more light. Then he turned his attention to storage.
“The minute we saw the flat, we knew the client would need a lot of storage,” Leung says. “So we used every inch of space and added a platform.”

The platform, the apartment’s defining feature, solves several design problems at once. Visually, the podium adds dimension and elevation and makes the room more interesting, while the steps create additional seating without the clutter of extra chairs.